• 皇冠五金官方FB
  • 最新消息
  • 電子型錄
  • 進口產品
  • 技術支援與下載
  • 新品推薦
  • 分類導覽
  • 皇冠五金官方FB
    Copyright © 2017 MIRACLE

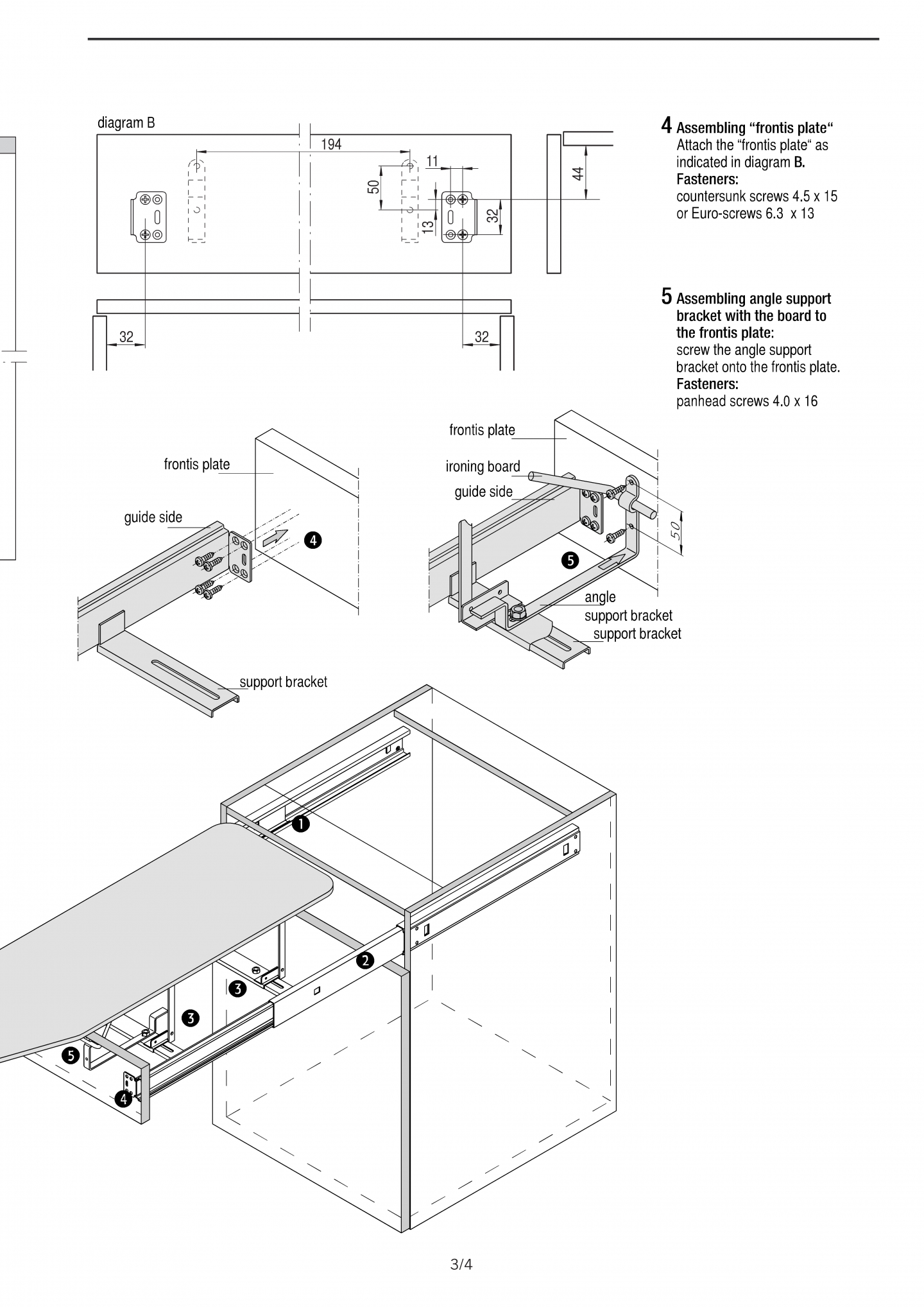
VS84001 隱藏抽式熨衣板

  • 首頁
  • 技術支援與下載
  • 安裝說明書
  • 德國 VAUTH SAGEL系列

技術支援與下載

  • 安裝說明書
    • 德國 VAUTH SAGEL系列
    • 德國 SUSPA系列
    • 日本 Panasonic系列
    • 奧地利 blum系列
    • A系列
    • D系列
    • F系列
    • G系列
    • H系列
    • K系列
  • 安裝與展示視頻
  • 使用說明書
    • F08103 IH調理爐(KY-C1W70-K)
    • F08101/2 IH調理爐(KY-A1W70-K/W)
    • 崁入式自動洗碗烘乾機(220v)
    • 崁入式自動洗碗烘乾機(110v)
    • F07249頂側雙吸式排油煙機
    • F07104(KY-X1131)單口調理爐
    • LED浴鏡系列
回上層
網站內所有資訊、文字與圖片均受相關法令保障,非經同意不得任意翻印、重製、轉載及利用本網站資料從事未經授權之商業行為